MusicLearn 🎵 Aprende idiomas a través de Música, Video y Podcast

Importar AutoCAD a SketchUp: Método más eficiente para modelado rápido

¿Necesitas integrar tus planos AutoCAD en SketchUp para un modelado rápido y eficiente? Este artículo te guiará a través del método más efectivo para importar archivos AutoCAD a SketchUp, maximizando la precisión y minimizando el tiempo de trabajo. Aprenderás a optimizar el proceso de importación, solucionar problemas comunes y aprovechar al máximo las herramientas de ambos programas para un flujo de trabajo fluido y resultados profesionales. ¡Empecemos!

Instrucciones Paso a Paso

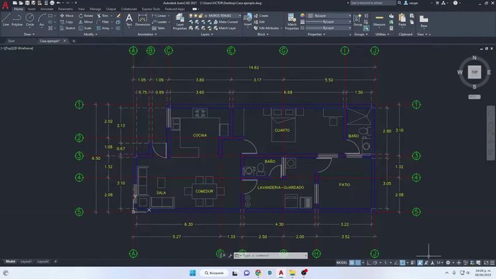
  1. Preparación del archivo AutoCAD

    • Organizar elementos en capas (layers) en AutoCAD.
    • Limpiar el archivo AutoCAD:
    • Seleccionar todo y usar el comando OVERKILL para eliminar líneas superpuestas.
    • Usar el comando PURGE para eliminar elementos no necesarios (símbolos, ejes, cotas, textos).
    Usar el comando PURGE para eliminar elementos no necesarios (símbolos, ejes, cotas, textos). Usar el comando PURGE para eliminar elementos no necesarios (símbolos, ejes, cotas, textos). Usar el comando PURGE para eliminar elementos no necesarios (símbolos, ejes, cotas, textos). Usar el comando PURGE para eliminar elementos no necesarios (símbolos, ejes, cotas, textos).
    Preparación del archivo AutoCAD
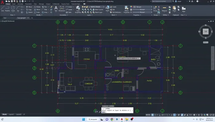
    • Usar el comando AUDIT para eliminar información no utilizada que ocupa espacio.
    • Guardar el archivo AutoCAD en una versión compatible con SketchUp (versión 2013 recomendada).
    • Importar el archivo DWG a SketchUp:
    • Abrir SketchUp, seleccionar la plantilla en metros.
    Abrir SketchUp, seleccionar la plantilla en metros. Abrir SketchUp, seleccionar la plantilla en metros. Abrir SketchUp, seleccionar la plantilla en metros. Abrir SketchUp, seleccionar la plantilla en metros.
    Preparación del archivo AutoCAD
    • Ir a 'Archivo' > 'Importar', seleccionar el archivo DWG.
    • En 'Opciones', desmarcar 'Importar caras', 'Importar materiales' y 'Importar grupos'. Mantener o desmarcar 'Mantener posición'.
    • Seleccionar las unidades (metros).
    • Importar.
    Importar. Importar. Importar. Importar.
    Preparación del archivo AutoCAD
  2. Guardado y exportación del archivo AutoCAD

    • Verificar las dimensiones en SketchUp comparándolas con las de AutoCAD.
    Verificar las dimensiones en SketchUp comparándolas con las de AutoCAD.
    Guardado y exportación del archivo AutoCAD
  3. Importación a SketchUp

    • Utilizar las etiquetas de capas importadas para seleccionar y agrupar elementos (muros).
    • Crear caras de muros utilizando el plugin 'Make Face'.
    • Utilizar el plugin 'Random Push/Pull' para extrudir muros a la altura deseada.
    Utilizar el plugin 'Random Push/Pull' para extrudir muros a la altura deseada. Utilizar el plugin 'Random Push/Pull' para extrudir muros a la altura deseada. Utilizar el plugin 'Random Push/Pull' para extrudir muros a la altura deseada.
    Importación a SketchUp
  4. Verificación de dimensiones

  5. Modelado rápido en SketchUp (Muros)

[RelatedPost]

Tips

  • La limpieza del archivo AutoCAD es crucial para una importación eficiente y un modelado fluido en SketchUp.
  • Utilizar la versión 2013 de AutoCAD para evitar problemas de compatibilidad.
  • Desactivar las opciones de importación de caras y materiales optimiza el proceso para líneas.
  • La opción 'Mantener posición' respeta las coordenadas de AutoCAD, mientras que desactivarla centra el modelo en SketchUp.
  • Verificar dimensiones para asegurar la precisión del modelo.

Common Mistakes to Avoid

1. Unidades de medida inconsistentes

Razón: Importar archivos AutoCAD con unidades diferentes a las de SketchUp puede resultar en un modelo a escala incorrecta o distorsionado.
Solución: Verifique y ajuste las unidades de medida en ambos programas antes de la importación para asegurar la compatibilidad.

2. Geometría compleja o mal definida en AutoCAD

Razón: Objetos AutoCAD con geometría excesivamente compleja, mal definida o con errores pueden causar problemas de importación o generar un modelo inestable en SketchUp.
Solución: Simplifique la geometría en AutoCAD antes de la importación, limpiando objetos redundantes o corrigiendo errores geométricos.

FAQs

¿Qué formato de archivo AutoCAD es el mejor para importar a SketchUp?
Generalmente, los archivos DXF (.dxf) son la mejor opción para importar a SketchUp. Ofrecen mayor compatibilidad y suelen importar con menos problemas que los archivos DWG (.dwg), especialmente en versiones antiguas de AutoCAD o SketchUp.
¿Cómo soluciono problemas de geometría incorrecta después de importar desde AutoCAD?
Si la geometría importada se ve distorsionada o incorrecta, verifica la configuración de unidades en ambos programas (AutoCAD y SketchUp). Asegúrate que coincidan. También puedes intentar simplificar la geometría en AutoCAD antes de exportar, o usar la herramienta 'Limpiar' en SketchUp después de la importación para eliminar geometría superflua.